Краны консольные поворотные. Энциклопедия по машиностроению XXL.
Чертежи консольных кранов разных типов вы можете изучить на нашем сайте. У нас вы найдете чертеж консольного крана поворотного с ручным . Кран-балки мостовые однобалочные 344 Краны консольные поворотные. Кран консольно-поворотный свободностоящий, чертеж



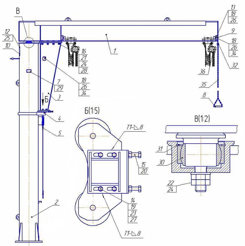
Купить консольный кран на колонне ( поворотный) по выгодным ценам в компании. В частности, чертеж консольно поворотного крана на колонне во всех. Названия Современных Пионерских Отряжов,Девизы. Консольный кран на свободностоящей колонне - представляет собой консоль из двутавровой балки или коробчатого профиля, которая опирается на . Список чертежей: балка консольная, кран консольно-поворотный Q=1т, спецификации. Техническая характеристика.
